Neubau Gastronomie - Marktpirat, Heide

Projektbeschreibung

Der Marktpirat in Heide erfreut sich einer außergewöhnlichen Lage auf dem größten Marktplatz Deutschlands.

Die Architektur dieses neuen und im Bereich der Gasträume außerordentlich transparenten Hauses ist sachlich und reagiert mit unaufdringlicher Modernität auf die Besonderheiten des Ortes. Auf einen Wettstreit mit den traditionsreichen Häusern in der Nachbarschaft lässt es sich nicht ein.

Das Restaurant ist nicht vom Himmel gefallen. Hier, an der Südwestecke des Marktplatzes neben der Kirche, hatten zuvor drei kleine Pavillons aus den 1980er­Jahren gestanden, die aber irgendwann als „schrottreife Wurstbuden" galten. Für einen anspruchsvolleren Neubau, der auch das Büro des Marktleiters und öffentliche WCs aufnehmen musste, wurde ein Architektenwettbewerb durchgeführt. Der Entwurf von Jebens Schoof Architekten BDA überzeugte die Jury.

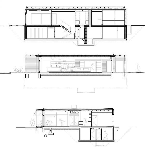
Das Haus setzt sich aus zwei unterschiedlichen Teilen zusammen und überträgt damit seine innere Organisation und Funktionalität in eine verständliche architektonische Sprache. Nach Norden hin zeigt es einen stabilen Rücken, beplankt mit horizontal verlaufenden massiven Zedernholzprofilen, dazwischen breite, anthrazitfarbene Fugen. So zieht sich die veredelte „Kiste" optisch in die Länge.

An diesen schweren Teil, der die „dienenden" Räume aufnimmt, schließt sich nach Süden der optisch leichte, zur Einkaufsstraße transparente Hauptraum des Restaurants wie ein Wintergarten an.

Seine Fassaden sind nach Osten, Süden und Westen vollständig verglast. Sie lassen sich bei passendem Wetter großflächig öffnen, sodass der Gastraum frei in die vorgelagerten Holzterrassen übergeht und sich die Trennung zwischen innen und außen auflöst.

Glasvordächer auf zierlichen Stahlstützen und Sonnensegel an der Südseite umspielen den Pavillon und lassen ihn noch filigraner erscheinen. Das Haus verstellt den Passanten der Fußgängerzone nicht den Weg. Dass hier einmal eine Hauptverkehrsachse Heides verlief, ist kaum noch vorstellbar. Ein benachbarter, schmalerer Weg führt dagegen mitten durch das Haus. In gleicher Pflasterung wie draußen verläuft der Fußweg der Allee am Südrand des Platzes längs durch den Marktpirat, an der Ostseite hinein und an der Westseite wieder hinaus. Dies ist ein stadthistorisch begründetes Angebot an die „Laufkundschaft".

Fotos: JEBENS SCHOOF ARCHITEKTEN BDA