Sanierung und Erweiterung Kindergarten - Kita Lummerland, Hennstedt

Projektbeschreibung

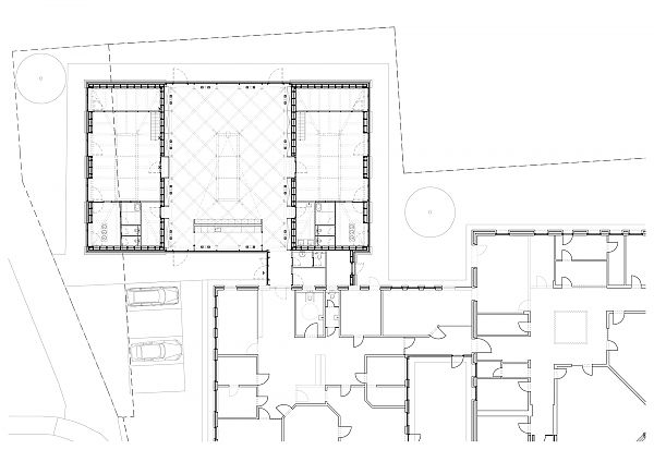
Der Erweiterungsbau der Kindergartens Hennstedt fügt sich städtebaulich optimal in den Kontext des Schulzentrums als auch in die dörfliche Umgebung ein. Mit seiner dreiteiligen Gliederung, ortstypischen Gebäudehöhe und Dachform steht der Neubau gleichwertig und selbstbewusst neben den beiden Bestandsgebäuden ohne sich unterzuordnen oder über diese zu erheben. Die Dächer- und Fassaden aus roten Aluminiumrauten und -Glasfassaden prägen die Architektur und lehnen sich an ortstypische Dächer und Fassaden aus Rotstein an.

Der zukünftige Haupteingang des Kindergartens liegt vollkommen selbstverständlich im Verbindungsbau zwischen Alt und Neu. Der Neubau besteht aus dem zentralen Multifunktionsraum mit seinem eleganten Holzstabtragwerk in Rautenform, gelagert auf wenigen V-förmigen Stützen. Transparent und lichtdurchflutet fließen Innen- und Außenraum zusammen und öffnen Blickbeziehungen. Hier werden in Zukunft alle Kinder zusammen Mittag essen, lernen und feiern. Die Küche steht frei im Raum und macht die Essenszubereitung für die Kinder erlebbar.

Ganz anders die beiden flankierenden Gebäudeteile, die die Kinder behütend umschließen. Es entstehen zwei Gruppenräume mit einer Familien- und einer Regelgruppe sowie Ruhe- und Sanitärräume.

Der Neubau ist als moderner Holzskelett- bzw. Holztafelbau hochwärmegedämmt. Gemeinsam mit modernster Gebäudetechnik, d.h. Heizung mit Fernwärme, Lüftungsanlage mit Wärmerückgewinnung und LED-Beleuchtung erfüllt das Gebäude höchste Ansprüche an nachwachsende Rohstoffe, Nachhaltigkeit und Betriebswirtschaftlichkeit.

Fotos: Martin Lukas Kim und Wolfgang Croce