Neubau Haus W&K, Heide

Projektbeschreibung

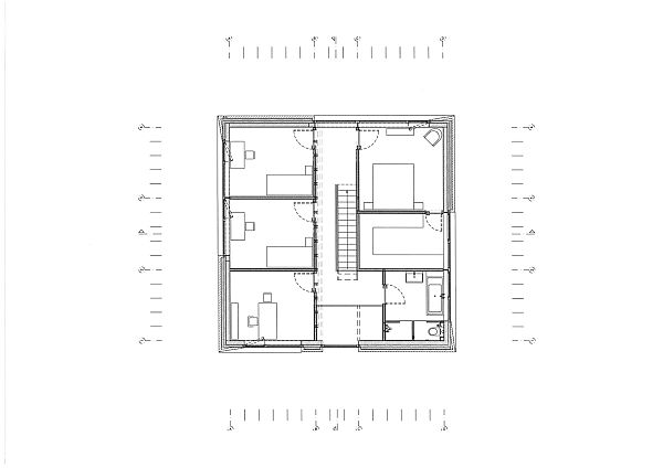
Das Einfamilienhaus fällt städtebaulich durch seine Zurückhaltung im heterogenen Durcheinander des Neubaugebietes auf. Es ist von der Straße zurückgesetzt, abgestimmt auf das kleinere der Nachbargebäude. Auf einer quadratischen Grundfläche ist die Grundrissstruktur des Gebäudes streng geordnet. Durch den mittigen Eingang betritt man das lichtdurchflutete, zweigeschossige Foyer geprägt von der skulpturalen Treppe. Fließend öffnet sich der Wohnraum mit Essplatz und freistehender Küche durch die bodentiefen Glasfronten zum Garten mit Terrassen. Im Erdgeschoß befindet sich auch ein Gästezimmer. Im Obergeschoß wird der Flur zur lichten Galerie. Die versetzte Dachform wird erlebbar. Hier befinden sich Schlafen, Ankleide, Bad sowie Kinder- und Arbeitszimmer. Die Formgebung des Gebäudes ist im Gegensatz zur inneren Strenge verspielt und leicht, die Fassade aufgelöst und fein gegliedert. Der Verblendstein, die Sichtbetonstürze und schlanken Fenster sind aufwendig detailliert. Das Haus verfügt über ein kombiniertes fossilfreies Heiz- und Lüftungsgerät mit höchster Wärmerückgewinnung. Eine Photovoltaik ist vorgerüstet.

Fotos: Alexander Zachen